主要用途:
本系列產品主要用于鐵路、公路、橋梁、港口、高層建筑等工程建設對橡膠支座性能的測試。滿足《JTT-391-2009公路橋梁盆式支座》、《TB/T1893-2006鐵路橋路板式橡膠支座》、《JG118-2000建筑隔震橡膠支座》等性能測試的技術要求。也可用于金屬及其他非金屬材料、構件強度試驗。控制方式采用計算機電液伺服系統自動控制,實現等速率自動加載和恒試驗力保持、試驗數據和曲線實時顯示、儲存復查、試驗報告自動生成、打印輸出并有網絡接口,試驗軟件具備與國內主流聯網公司數據上傳功能。
技術參數:

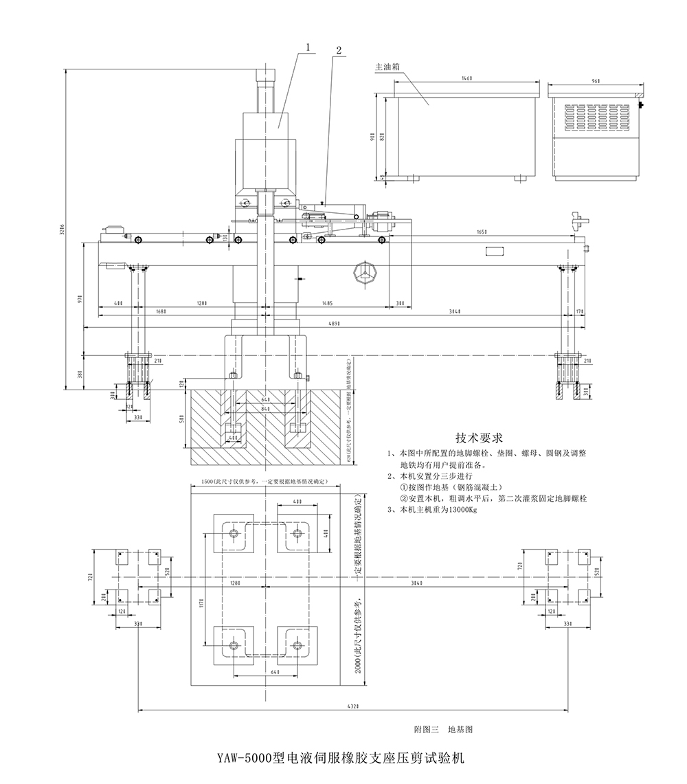
地基圖:

