主要用途:
主要用于各種金屬材料、非金屬材料的拉伸、彎曲、壓縮、剪切、剝離、撕裂等試驗。例如螺紋鋼拉伸,高強度螺栓、高硬度金屬材料的拉伸彎曲,鋼盤機械連接件殘余變形,金屬以及混凝土的壓縮等。
滿足標準:
GB/T 228.1-2021金屬室溫拉伸試驗方法標準
GB/T 7314-2017金屬壓縮試驗方法法
GB/T 50081-2019混凝土物理力學性能試驗方法標準
GB/T 16826-2008電液伺服萬能試驗機
JJG 1063-2010電液伺服萬能試驗機檢定規程
JGJ 107-2016鋼筋機械連接技術規程
采用專利:
ZL 201930466197.1 萬能試驗機(CXWAW-300S)
產品特點:
1.采用油缸下置,六立柱框架結構,剛性好,結構穩定。
2.上下內置拉伸油缸,使液壓夾頭試件自動夾緊。
3.鉗口液壓夾緊系統實時供油,防止試件在拉伸過程中打滑,影響試驗結果真實性與有效性。
4.采用高精度負荷傳感器測力,測量精度高,范圍廣。
5.采用高精度位移傳感器。
6.采用伺服電機控制,靜音節能,系統發熱量小。
7.采用高精度引伸計測量試樣變形。
8.采用雙螺母反向消隙結構,解決了由于螺母長期運行磨損導致的零部件縫隙增大問題,保證加載速率,遠超于GB228的標準。
9.采用內藏式結構設計,鉗口及鉗口卡板在試驗運行時均不外露到鉗口座的外面,使試驗機鉗口內的受力度相對均衡,有效避免試驗機在長期運行中對試驗機卡板、鉗口、鉗口座的勞損問題,從而解決試驗機鉗口座反邊、變形的問題。
10.嵌入式高強度耐磨銅襯板設計,既可減小試件拉伸時卡板和試驗機橫梁的摩擦阻力,又可最大限度的保證同軸度。嵌入式左右壓板,消除螺絲剪切力,使螺絲不易松動。
11.對消隙螺母、絲桿螺母、傳感器螺母、底座、活塞拉桿、左右壓板螺母進行調整加工,使試驗機更加穩定牢固。
12.采用封閉式防護結構,有效阻止灰塵以及試件氧化皮進入絲桿與螺母,使試驗機平穩運行,耐久性更好。
13.采用聯網的測控系統,具有增益調節、零點滿度等功能,保證機器平穩運行及準確測量。
14.可實現恒速率力控制,恒速率應力控制、恒速率應變控制、恒速率行程控制、低周循環疲勞控制及用戶自編程控制等多種控制方式。
15.可繪制力-變形、力-位移、應力-應變、力-時間等多種試驗曲線。
16.采用PCI總線控制方法。
17.液壓系統的主要部件采用國外進口機件,如進口的西門子電機以及進口的徑向柱塞油泵,使得試驗機加載精度更高、噪音更低、耐久性更好,增強了機器的穩定性。
18.采用計算機和電液伺服系統進行控制加載,完全自動控制。能根據預先設置的應力速率和曲線形式自主完成試驗,并顯示負荷、速率、時間及試驗曲線動態顯示。只需設置一次參數即可完成全部試驗。
19.測力柜配備了當前先進的工業級嵌入式平板電腦,可承受的電壓范圍達85-250V,抗干擾性能更強。電腦采用觸屏工藝,觸摸操作或鍵盤操作均可使用,整體更加符合人體工程學設計,操作更加方便簡單。
20.采用Windows系統控制軟件,可自動求取彈性模量E,上屈服強度ReH、下屈服強度REL、規定非比例延伸強度Rr、抗拉強度Rm、規定總延伸強度Rt、最大力總伸長Agt、屈服點延伸率等多項技術參數。
21.采用微機自動數據采集、處理以及試驗數據與試驗曲線同步屏幕顯示。試驗曲線可局部放大并可進行多曲線的疊加比較。具有試驗結果的磁盤存貯、打印試驗結果和試驗曲線,批量試驗結果的報表處理、數據庫管理等功能并留有網絡接口。具有局域網聯網功能和遠程數據無縫聯接功能。
技術參數:

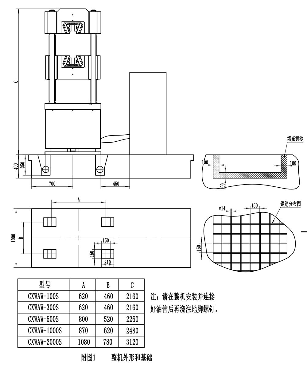
安裝地基圖:
